3G三螺桿泵用來輸送溫度≦150℃,粘度3-760cst,不含固體顆粒,無腐蝕性,具有潤滑性能的介質。
適用壓力范圍:0.6-2.5MPa,
適用流量范圍:0.6-123m3/h。
3G三螺桿泵主要用于燃油輸送、液壓工程、船舶工程、石化及其他工業。
3G三螺桿泵一般采用機械密封。泵通過爪型聯軸器由電動機驅動。從主軸外伸端向泵看,為順時針旋轉。
3G三螺桿泵屬于轉子式容積泵。在泵中,由于主螺桿與從動螺桿上螺旋槽相互嚙合及它們與襯套三孔內表面的配合,得以在泵的進口與出口之間形成數動密封室,這些動密封室將不斷把液體由泵進口軸向移動到泵出口,并使所輸送液體逐級升壓。從而形成一個連續、平穩、軸向移動的壓力液體。
3G三螺桿泵結構及性能特點:
1、結構簡單:泵本身僅有三根螺桿組成,但有多種結構形成,一般小流量0.2-6.5立方/小時泵的泵體和襯套合為一個臥式安裝,軸封為機械密封。中等流量以上的泵襯套為一單獨的零件固定于泵體內。大流量泵多制成雙吸結構。軸根據輸送介質的不同有端面機械密封和填料密封兩種。船用泵的原動機為交流船用電機。
2、壽命長:三螺桿泵的主動螺桿由電動機驅動。主、從桿之間,螺桿與襯套之間皆有一層油膜保護,因泵的機械摩擦極小,壽命長。
3、3G型三螺桿泵所輸液體在泵內作軸向勻速直線運動,故壓力脈動小,流量穩定,噪音低,由于轉動部分慣性小,則起動力矩和振動很小。
4、具有高吸處能力。
5、為確保泵、電機及管路系統的安全,中等流量以上的三螺桿泵均有安全閥,當壓力超過安全閥的設定壓力時,高壓油將回流至泵的進口。
一、三螺桿泵的起動
三螺桿泵應在吸排停止閥全開的情況下起動,以防過載或吸空。
三螺桿泵雖然具有干吸能力,但是必須防止干轉,以免擦傷工作表面。 假如泵需要在油溫很低或粘度很高的情況下起動,應在吸排閥和旁通閥全開的情況下起動,讓泵起動時的負荷低,直到原動機達到額定轉速時,再將旁通閥逐漸關閉。
當旁通閥開啟時,液體是在有節流的情況下在泵中不斷循環流動的,而循環的油量越多,循環的時間越長,液體的發熱也就越嚴重,甚至使泵因高溫變形而損壞,必須引起注意。
二、三螺桿泵的運轉
三螺桿泵必須按既定的方向運轉,以產生一定的吸排。
泵工作時,應注意檢查壓力、溫度和機械軸封的工作。對軸封應該允許有微量的泄漏,如泄漏量不超過20-30秒/滴,則認為正常。假如泵在工作時產生噪音,這往往是因油溫太低,油液粘度太高,油液中進入空氣,聯軸節失中或泵過度磨損等原因引起。
三、三螺桿泵的停車
三螺桿泵停車時,應先關閉排出停止閥,并待泵完全停轉后關閉吸入停止閥。
三螺桿泵因工作螺桿長度較大,剛性較差,容易引起彎曲,造成工作失常。對軸系的連接必須很好對中;對中工作在安裝定位后進行,以免管路牽連造成變形;連接管路時應獨立固定,盡可能減少對泵的牽連等。此外,備用螺桿,在保存時采用懸吊固定的方法,避免因放置不平而造成的變形。

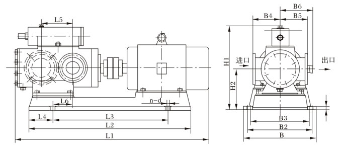
3G45×4-100×2外形及安裝尺寸
| 泵型號 | 機座號 | L1 | L2 | L3 | L4 | L5 | L6 | B1 | B2 | B3 | B4 | B5 | B6 | H1 | H2 | H3 | n-d |
| 45×4 | Y100L Y132S Y132M Y160M | 890 985 1025 1119 | 740 809 838 932 | 472 518 538 610 | 145 145 145 160 | 209 209 209 209 | 85 85 85 73.5 | 325 380 380 429 | 285 340 340 389 | 285 340 340 340 | 130 130 130 130 | 140 140 140 140 | 180 210 210 265 | 350 400 400 470 | 205 217 217 245 | 25 25 25 25 | 4-φ18 4-φ18 4-φ18 4-φ18 |
| 60×4 | Y160M Y160L Y200L | 1297 1342 1475 | 1017 1061 1157.5 | 700 700 757.5 | 178 178 183 | 285 285 285 | 100 100 100 | 460 460 525 | 410 410 475 | 370 370 370 | 170 170 170 | 175 175 175 | 265 265 310 | 585 585 585 | 270 270 310 | 30 30 30 | 4-φ23 4-φ23 4-φ23 |
| 70×2 | Y132M Y160M | 1199 1289 | 930 1012 | 587 652 | 159 160 | 165 165 | 71 71 | 420 465 | 380 425 | 380 380 | 170 170 | 170 170 | 210 265 | 458 500 | 275 275 | 30 30 | 4-φ23 4-φ23 |
| 70×4 | Y180M Y200L | 1404 1509 | 1199 1277 | 780.5 795 | 230.5 230.5 | 305 305 | 145 145 | 495 540 | 455 500 | 380 380 | 170 170 | 170 170 | 285 310 | 540 585 | 290 310 | 30 35 | 4-φ23 4-φ23 |
| 80×2 | Y160M Y180M | 1244 1308 | 1043 1092 | 663 707 | 165 165 | 204 204 | 110 110 | 470 480 | 430 440 | 430 440 | 190 190 | 190 190 | 265 285 | 505 540 | 280 290 | 30 30 | 4-φ23 4-φ23 |
| 80×4 | Y200L Y225M | 1570 1640 | 1241 1297 | 826 875 | 204 204 | 360 360 | 145 145 | 525 580 | 475 530 | 410 410 | 190 190 | 190 190 | 315 345 | 585 640 | 310 335 | 30 30 | 4-φ23 4-φ23 |
| 100×2 | Y180L Y225S | 1513 1623 | 1265 1336 | 821 865 | 195 195 | 254 254 | 140 140 | 520 595 | 460 535 | 460 460 | 220 220 | 220 220 | 285 345 | 580 640 | 330 335 | 30 30 | 4-φ23 4-φ23 |
3G三螺桿泵規格參數表
| 型號 | 排出壓力 P MPa | 流量 Q | 轉速n r/min | 必需汽蝕余量 rm | 效率η % | 電動機 | ||
| m3/h | L/min | 功率kw | 型號 | |||||
| 25×4-46 | 1.0 | 0.8 | 13 | 1450 | 4 | 62 | 0.75 | Y802-4 |
| 2.5 | 0.6 | 10 | 60.6 | 1.5 | Y90L-4 | |||
| 1.0 | 2.0 | 33 | 2900 | 4.5 | 59.4 | 1.5 | Y90S-2 | |
| 2.5 | 1.6 | 26 | 69 | 3 | Y100L-2 | |||
| 30×4-46 | 1.0 | 1.6 | 26 | 1450 | 4.5 | 63.5 | 1.1 | Y90S-4 |
| 2.5 | 1.2 | 20 | 61 | 2.2 | Y100L1-4 | |||
| 1.0 | 3.6 | 60 | 2900 | 5 | 60 | 2.2 | Y90L-2 | |
| 2.5 | 3.2 | 53 | 69 | 4 | Y112M-2 | |||
| 36×4-46 | 1.0 | 2.8 | 46 | 1450 | 4.5 | 66 | 2.2 | Y100L1-4 |
| 2.5 | 2.4 | 40 | 66.5 | 4 | Y112M-4 | |||
| 1.0 | 6.5 | 108 | 2900 | 5 | 60.5 | 4 | Y112M-2 | |
| 2.5 | 6 | 100 | 72 | 7.5 | Y132S2-2 | |||
| 42×4-46 | 1.0 | 4.8 | 80 | 1450 | 5 | 62 | 4 | Y112M-4 |
| 2.5 | 4.2 | 70 | 73 | 5.5 | Y132S1-4 | |||
| 1.0 | 10.5 | 175 | 2900 | 5.5 | 61 | 5.5 | Y132S1-2 | |
| 2.5 | 10 | 166 | 72 | 15 | Y160M2-2 | |||
| 45×4-46 | 1.0 | 6.3 | 106 | 1450 | 5 | 70 | 3 | Y100L2-4 |
| 2.5 | 5.9 | 99 | 74 | 7.5 | Y132M-4 | |||
| 1.0 | 13.5 | 225 | 2900 | 5.5 | 60 | 7.5 | Y132S2-2 | |
| 2.5 | 13 | 217 | 75 | 15 | Y160M2-2 | |||
| 60×4-46 | 1.0 | 15.5 | 255 | 1450 | 5 | 71.3 | 11 | Y160M-4 |
| 2.5 | 14.5 | 245 | 74 | 15 | Y160L-4 | |||
| 1.0 | 32 | 533 | 2900 | 5.5 | 63 | 18.5 | Y160L-2 | |
| 2.5 | 31.5 | 525 | 77 | 37 | Y200L2-2 | |||
| 70×2-46 | 0.6 | 24 | 400 | 1450 | 5 | 71 | 7.5 | Y132M-4 |
| 1.0 | 23.5 | 390 | 75 | 11 | Y160M-4 | |||
| 1.6 | 22.5 | 370 | 76 | 15 | Y160L-4 | |||
| 70×4-46 | 1.0 | 24.5 | 408 | 1450 | 5 | 72.5 | 18.5 | Y180M-4 |
| 2.5 | 23.5 | 392 | 79 | 30 | Y200L-4 | |||
| 80×2-46 | 0.6 | 36.5 | 608 | 1450 | 5 | 72 | 11 | Y160M-4 |
| 1.0 | 35 | 594 | 75.5 | 18.5 | Y180M-4 | |||
| 1.6 | 34.5 | 575 | 76.5 | 22 | Y180L-4 | |||
| 80×4-46 | 1.0 | 37 | 617 | 1450 | 5.5 | 72 | 30 | Y200L-4 |
| 2.5 | 35 | 590 | 78.1 | 45 | Y225M-4 | |||
| 100×2-46 | 0.6 | 72.5 | 1208 | 1450 | 5 | 73 | 22 | Y180L-4 |
| 1.0 | 71 | 1183 | 77 | 37 | Y225S-4 | |||
| 1.6 | 60.5 | 1158 | 79 | 45 | Y225M-4 | |||
| 100×4-46 | 1.0 | 72.5 | 1208 | 1450 | 5.5 | 73 | 55 | Y250M-4 |
| 2.5 | 70 | 1165 | 78.5 | 75 | Y280S-4 | |||
| S100×3-27 | 0.6 | 72 | 1196 | 1450 | 6 | 62 | 22 | Y180L-4 |
| 1.6 | 70 | 1160 | 72 | 55 | Y250M-4 | |||
| 2.5 | 69 | 1145 | 74 | 75 | Y280S-4 | |||
| S120×3-27 | 0.8 | 123 | 2055 | 1450 | 6 | 74.5 | 55 | Y250M-4 |
| 1.5 | 120 | 2010 | 76 | 90 | Y280M-4 | |||
| 2.5 | 115 | 1920 | 78.5 | 132 | Y315M-4 | |||
上一篇:3GBW保溫三螺桿泵
下一篇:沒有了